Ostrów Wielkopolski, ul. Wrocławska 12, tel. 62 592 18 13, tel. kom. 601 700 413 e-mail: ogn.ostrow@wp.pl
Witamy na stronie
Ostrowskiej Giełdy Nieruchomości
Licencja Zawodowa nr 2386
dom • sprzedaż • rynek pierwotny
Smołdziński Las • ul.Smołdziński Las
Numer oferty: Smołdziński Las
Cena: 599 000,00 PLN
Cena za m2: 8 436,62 PLN
| Powierznia (m²) | 71,00 |
| powierzchniadzialki (m²) | 440,00 |
| Forma własności | własność |
| Typ budynku | wolnostojący |
| Stan budynku | do wykończenia |
| Materiał budowy | bloczki |
| Liczba pokoi | 3 |
| Liczba pięter | 1 |
| Rok budowy | 2022 |
| Liczba łazienek | 2 |
| Miejsce postojowe | parking naziemny |
| Łazienka z WC | TAK |
| Taras | TAK |
| Urządzony ogród | TAK |
| Rolety antywłamaniowe | TAK |
| Internet | TAK |
| Telefon | TAK |
| Ogrzewanie | geotermika |
| Gaz | brak |
| Typ podłączenia wody | miejskie |
| Typ kanalizacji |
| Prąd | TAK |
Smołdziński Las i okolica - II ETAP BUDOWY
Mała miejscowość o charakterze letniskowym położona w powiecie słupskim, usytuowana pomiędzy jeziorami Gardno i Łebsko, w odległości około 3 km od morza.
Smołdziński Las jest częścią Słowińskiego Parku Narodowego. Jego rejon został włączony przez UNESCO do Światowego Rezerwatu Biosfery.
Jeziora, lasy, łąki, torfowiska, a przede wszystkim unikatowe w skali światowej ruchome wydmy tworzą jedyny w swoim rodzaju krajobraz będący oazą spokoju, która oferuje również wiele możliwości aktywnego wypoczynku.
Liczne szlaki turystyczne i bogato rozwinięta sieć ścieżek rowerowych pozwalają zwiedzać okolicę i cieszyć się fauną i florą tego niezwykłego miejsca.
Pobliska plaża należy do najpiękniejszych i najszerszych na polskim wybrzeżu. Mało oblegana przez turystów gwarantuje spokojny wypoczynek.
Słowińska Przystań to kompleks ośmiu domów rekreacyjnych/ wypoczynkowych/ całorocznych usytuowanych w miejscowości Smołdziński Las położonej w sercu Słowińskiego Parku Narodowego.
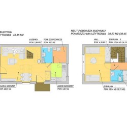
Oferujemy domy dwukondygnacyjne o powierzchni 71,05 m2 (80,30 m2) zaprojektowane w nowoczesnej stylistyce, dopasowanej do klimatu okolicy i otaczającej je przyrody.
Najwyższej jakości materiały i technologie, zastosowane do ich budowy, gwarantują wysoki komfort użytkowania.
Standard deweloperski umożliwi dostosowanie wykończenia wnętrz do indywidualnych potrzeb właścicieli.
Każdy dom posiada taras i miejsce postojowe.
Dojazd do wszystkich posesji utwardzoną drogą wewnętrzną.
Mur fundamentowy z bloczków betonowych ocieplony płytą styropian grubości 12 cm.
Ściany zewnętrzne z bloczków silikatowych (wapienno-piaskowych) grubości 18 cm na zaprawie termoizolacyjnej, ocieplone płytą styropian grubości 12-14 cm.
Strop międzykondygnacyjny prefabrykowany żelbetowy.
Schody prefabrykowane zabiegowe.
Dach dwuspadowy (stromy) ocieplony wełną mineralną grubości 25 cm, kryty dachówką ceramiczną.
Stolarka okienno-drzwiowa drewniana, szklenie trójszybowe
Rolety elektryczne (nadstawne).
Rozprowadzone na parterze ogrzewanie podłogowe, na poddaszu tradycyjne (pod grzejniki).
Możliwość zainstalowania pompy ciepła
Już teraz zapraszamy do rezerwacji budynków w drugim etapie sprzedaży.
Kompleks 8 budynków znajduje się na ogrodzonym terenie z dostępem poprzez furtkę oraz bramę automatyczną.
Ceny:
1C - budynek wypoczynkowy całoroczny (rekreacji indywidualnej) cena 599 000 zł brutto
1B - budynek wypoczynkowy całoroczny (rekreacji indywidualnej) cena 599 000 zł brutto
1A - budynek mieszkalny jednorodzinny cena 639 000 zł brutto
Ostrów Wielkopolski, ul. Wrocławska 12, tel. 62 592 18 13, tel. kom. 601 700 413 e-mail: ogn.ostrow@wp.pl