Ostrów Wielkopolski, ul. Wrocławska 12, tel. 62 592 18 13, tel. kom. 601 700 413 e-mail: ogn.ostrow@wp.pl
Witamy na stronie
Ostrowskiej Giełdy Nieruchomości
Licencja Zawodowa nr 2386
komercyjne • wynajem • rynek wtórny
Ostrów Wielkopolski • ul.Staroprzygodzka
Numer oferty: WL-1048
Cena: 85 000,00 PLN
Cena za m2: 25,00 PLN
| Powierznia (m²) | 3 400,00 |
| powierzchniadzialki (m²) | 10 000,00 |
| Forma własności | własność |
| Typ komercyjne | magazyny i hale |
| Miejsce postojowe | parking naziemny |
| Ogrodzenie | metalowe/kute |
| Pomieszczenie socjalne | TAK |
| Pomieszczenie użytkowe | TAK |
| Internet | TAK |
| Telefon | TAK |
| Ogrzewanie | brak |
| Liczba linii telefonicznych | 1 |
| Gaz | TAK |
| Siła | TAK |
| Prąd | TAK |
Oferujemy Państwu do wynajęcia nieruchomość komercyjną, która położona jest przy ulicy Staroprzygodzkiej w Ostrowie Wielkopolskim.
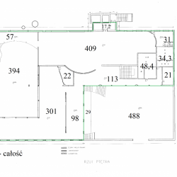
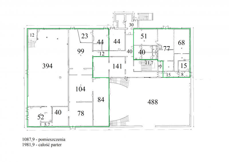
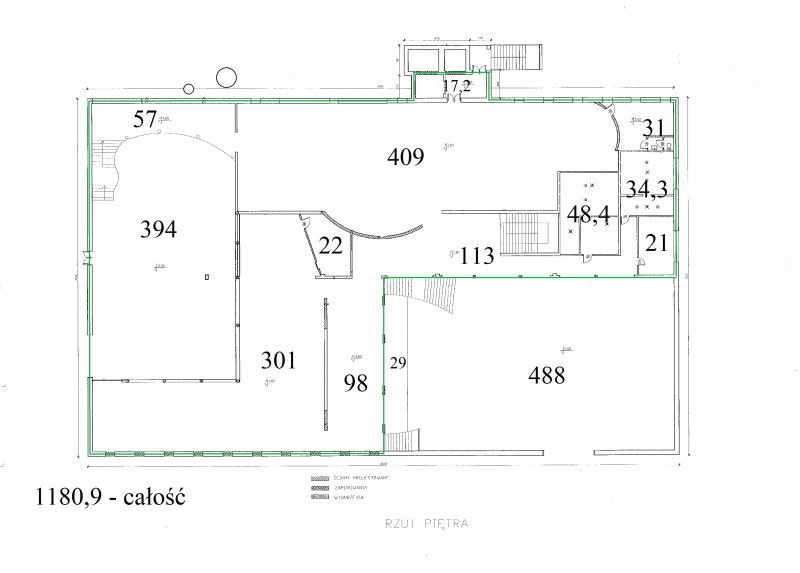
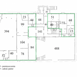
Budynek o powierzchni 3400m2 z możliwością wydzielenia 3-ech niezależnych pow. po ok. 1200 m2. na działce 10000 m2 (możliwość wydzielenia mniejszej).
Możliwość wydzielenia niezależnych lokali o powierzchni już od 52 m2 aż do ponad 2000 m2.
Hala o powierzchni 394 m2 i wysokości 7,5m.
Przeznaczenie: biura, magazyny, produkcja, handel, usługi.
Dogodny dojazd oraz spory teren parkingowy wokół budynku.
Możliwość wynajmu utwardzonego placu parkingowego o powierzchni do 10 000 m2.
Instalacje elektryczne, wod-kan, gazowa, alarmowa, światłowód.
Budynki oraz dostępna działka są przegotowane do wykorzystania na:
- Magazyny
- Centrum Handlowe
- Produkcja
- Centrum Logistyczne
- Hurtownia, Dyskont itp.
Nieruchomość ta posiada dostęp do drogi krajowej nr 11 łączącej Śląsk z Pomorzem Zachodnim.
Istnieje również możliwość wynajęcia terenu przy budynkach.
Czynsz: 25,00 zł/mies. netto (+23 % VAT).
Ostrów Wielkopolski, ul. Wrocławska 12, tel. 62 592 18 13, tel. kom. 601 700 413 e-mail: ogn.ostrow@wp.pl