Ostrów Wielkopolski, ul. Wrocławska 12, tel. 62 592 18 13, tel. kom. 601 700 413 e-mail: ogn.ostrow@wp.pl
Witamy na stronie
Ostrowskiej Giełdy Nieruchomości
Licencja Zawodowa nr 2386
komercyjne • wynajem • rynek wtórny
Ostrów Wielkopolski • ul.Rynek
Numer oferty: WL-1080
Cena: 5 700,00 PLN
Cena za m2: 84,07 PLN
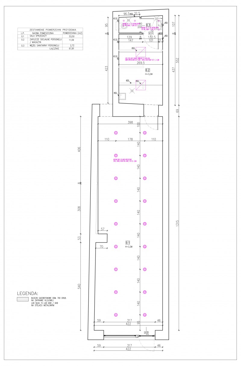
| Powierznia (m²) | 67,80 |
| Forma własności | własność |
| Typ komercyjne | handel i usługi/lokal handlowy |
| Zwalniane od | od zaraz |
| Liczba łazienek | 1 |
| Miejsce postojowe | na ulicy |
| Pomieszczenie socjalne | TAK |
| Pomieszczenie użytkowe | TAK |
| Drzwi / okna antywłamaniowe | TAK |
| Witryna | TAK |
| Internet | TAK |
| Telefon | TAK |
| Ogrzewanie | miejskie |
| Liczba linii telefonicznych | 1 |
| Ogrzewanie | TAK |
| Prąd | TAK |
Oferujemy Państwu do wynajęcia lokal handlowo - usługowy, który atrakcyjnie położony jest przy Ostrowskim Rynku. Jego powierzchnia to 70 m2, wewnątrz do dyspozycji mamy dużą salę główną - handlowo - usługową, zaplecze oraz toaletę. Lokal jest wewnątrz nowy, w wysokim standardzie wyposażenia.
Lokal jest po generalnym remoncie a materiały użyte do wykończenia wnętrza są wysokiej jakości. Media rozliczane są na podstawie indywidualnych liczników. Wszystkie instalacje są nowe - elektryczna, wodna, kanalizacyjna oraz centralnego ogrzewania
Wyposażenie:
- centralne ogrzewanie podłogowe zasilane z ciepłociągu miejskiego
- nowa witryna wystawowa i drzwi wejściowe do lokalu
- zamontowane nowoczesne oświetlenie
- na zapleczu przygotowane dodatkowe podejścia instalacyjne na dwie dodatkowe toalety
Lokal idealnie nadaje się na działalność handlową detaliczną ale również gastronomiczną, działalność bankową, biuro kredytowe, ubezpieczenia itp.
Czynsz: 5.700,00 zł/mies. netto (+23 % VAT). Kaucja zwrotna w wysokości 1 czynszu.
Prowizję biura pokrywa właściciel lokalu.
Ostrów Wielkopolski, ul. Wrocławska 12, tel. 62 592 18 13, tel. kom. 601 700 413 e-mail: ogn.ostrow@wp.pl